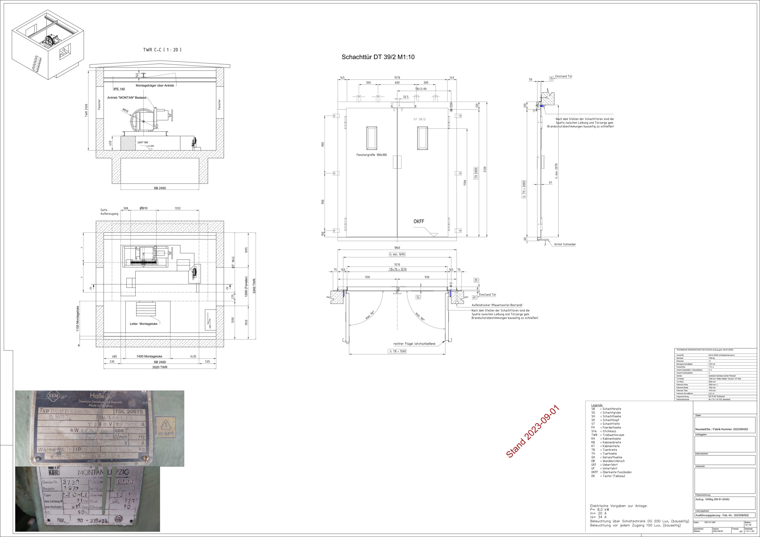
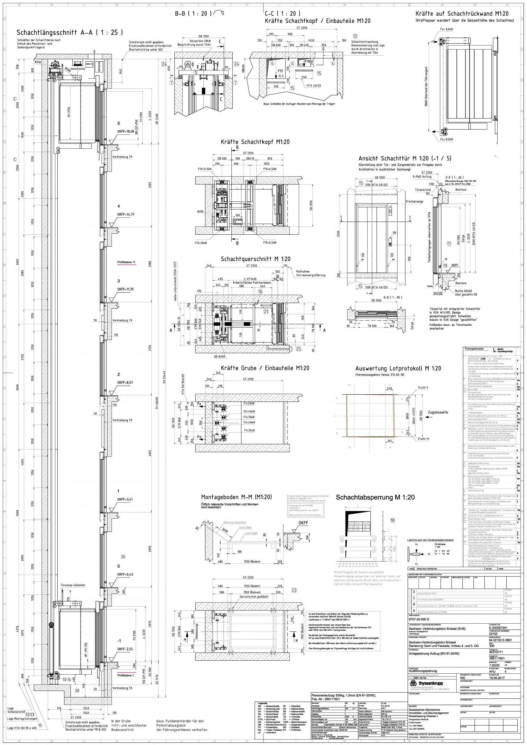
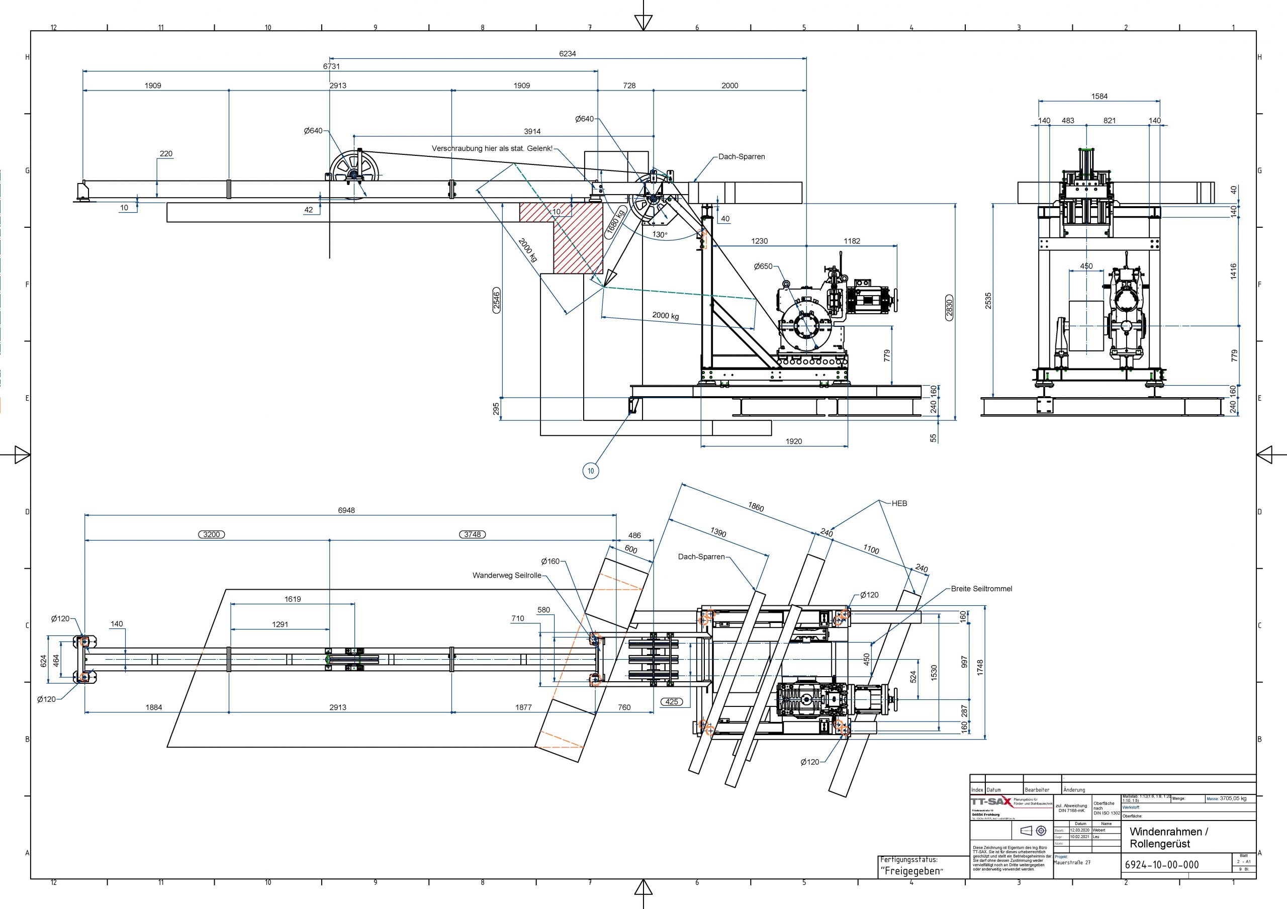
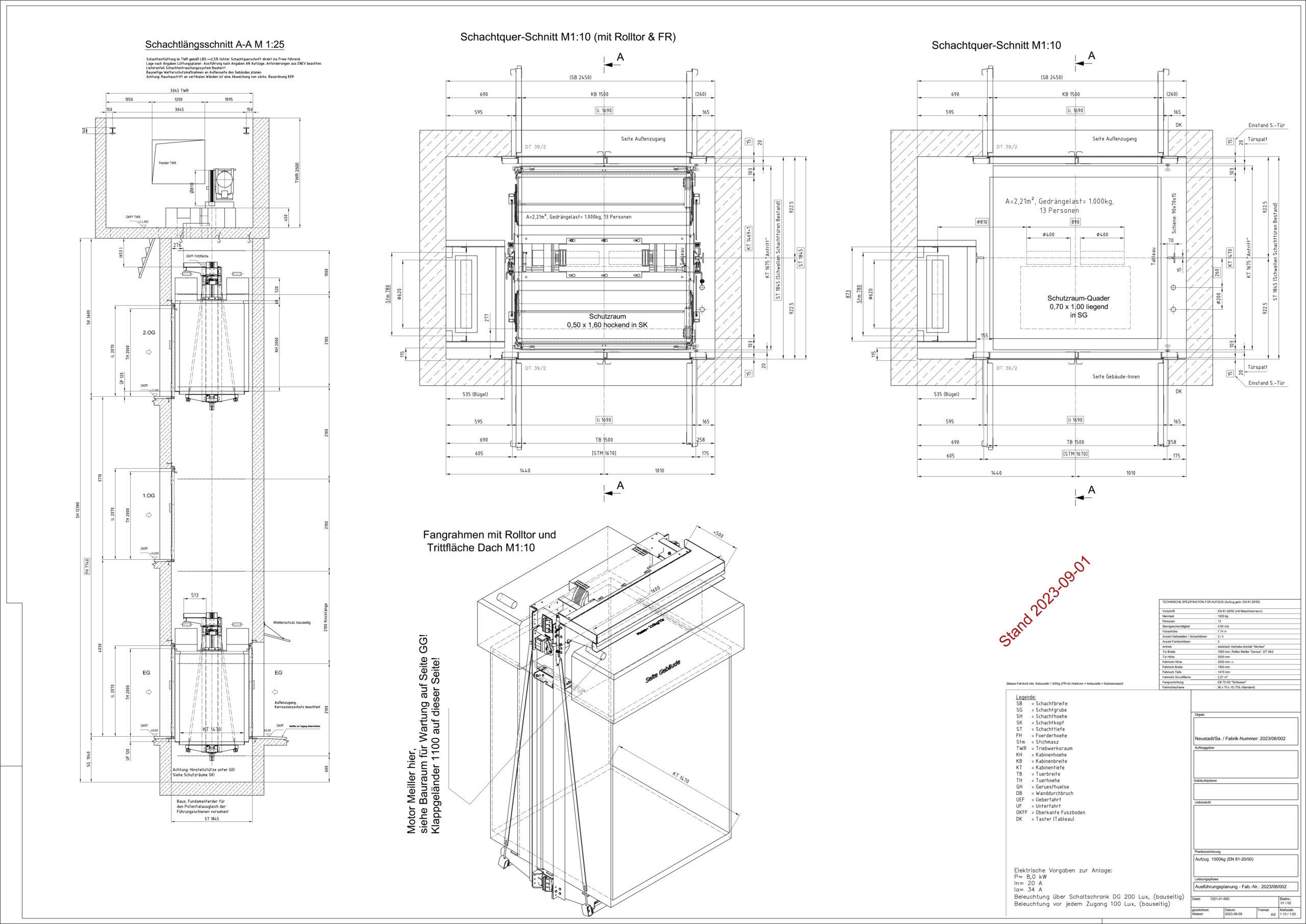
Referenzen Aufzüge- und Aufzugskomponenten
- Auftraggeber: Schneider Aufzugbau
- Auftrag: Modernisierung / Rekonstruktion DDR-Lastenaufzug, Neustadt (Sachsen) 1.000kg Nutzlast unter Beibehaltung des bestehenden Antriebs (Montan-Winde, Baujahr 1972 wurde auf Frequenzreglung und Zweikreisbremssystem umgebaut).
- Ausführungszeitraum: 2022-2024
- Leistungsumfang: Anlageplanung, Konstruktion und Berechnung aller Baugruppen.























































