Referenzen Fachplanung Aufzüge / Fördertechnik
Auftraggeber: INNIUS DÖ GmbH, Dresden
Auftrag: Sanierung Kirow-Werke Kantine, Leipzig
- Aufzug 1.250kg, maschineraumlos (EN 81-20/50, seil-elektrisch)
- Aufzug 630kg, maschineraumlos (EN 81-20/50, seil-elektrisch)
- Küchenaufzug mit Schachtgerüst (Maschinenrichtlinie 2006/42/EG)
- Auftragszeitraum: 2015-2018
Leistungsumfang:
Entwurfs- und Ausführungsplanung, Erstellung Leistungsverzeichnisse, Vorbereitung und Mitwirkung Vergabe (LPH 3, 5-7)
Downloaddokumente:
113-16-U05-SC-XX-002-_| 5-FTA-D-0003-00 | 5-FTA-D-0001-02 | 5-FTA-D-0001-01
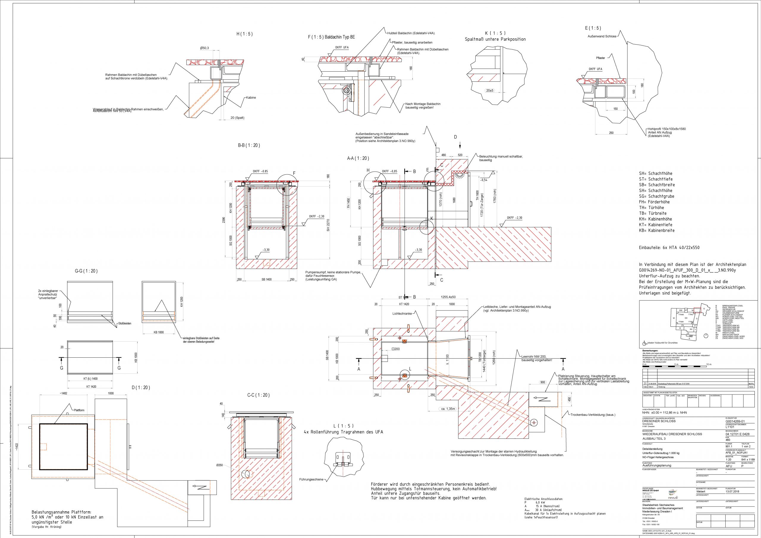
Auftraggeber: INNIUS DÖ GmbH, Dresden
Auftrag: Wiederaufbau Dresdner Schloss
- Unterfluraufzug 1.000kg,(Maschinenrichtlinie 2006/42/EG)
- Vertikaler Plattformaufzug – Hubbühne (EN 81-41)
- Schrägaufzug (Küchenaufzug) (Maschinenrichtlinie 2006/42/EG)
- Auftragszeitraum: 2016-2021
Leistungsumfang:
Entwurfs- und Ausführungsplanung, Erstellung Leistungsverzeichnisse, Vorbereitung und Mitwirkung Vergabe (LPH 3, 5-7)
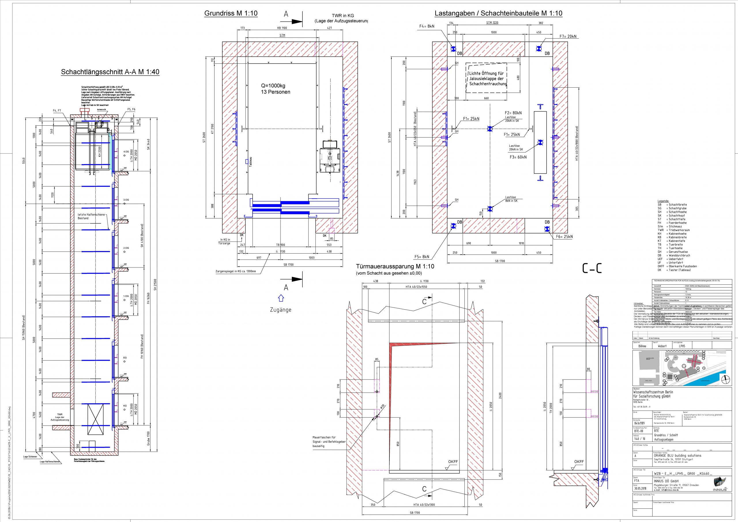
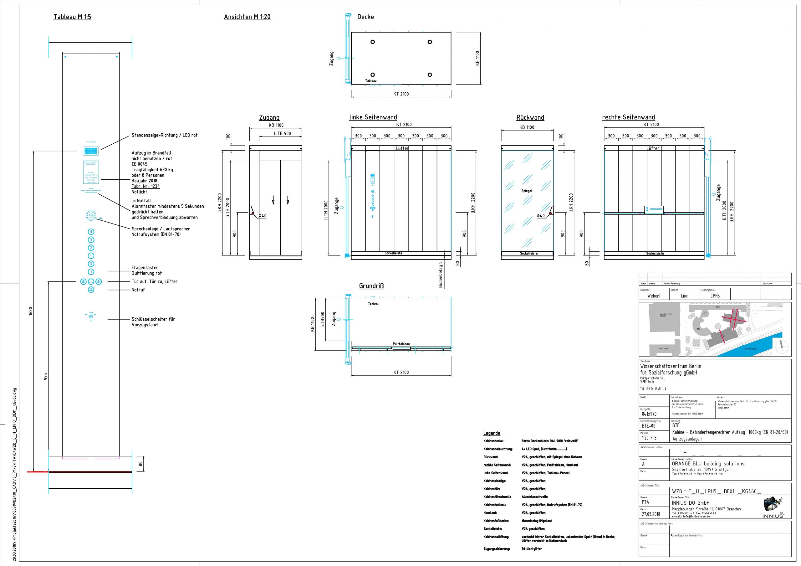
Auftraggeber: INNIUS DÖ GmbH, Dresden
Auftrag: Erneuerung Fördertechnik, Wissenschaftszentrum Berlin (WZB)
- Bogenhublift, (Maschinenrichtlinie 2006/42/EG)
- Seilaufzug 1050kg, Umbau auf erhöhte Förderhöhe (EN 81-20/50)
- Auftragszeitraum: 2016-2018
Leistungsumfang:
Entwurfs- und Ausführungsplanung, Erstellung Leistungsverzeichnisse, Vorbereitung und Mitwirkung Vergabe (LPH 3, 5-7)
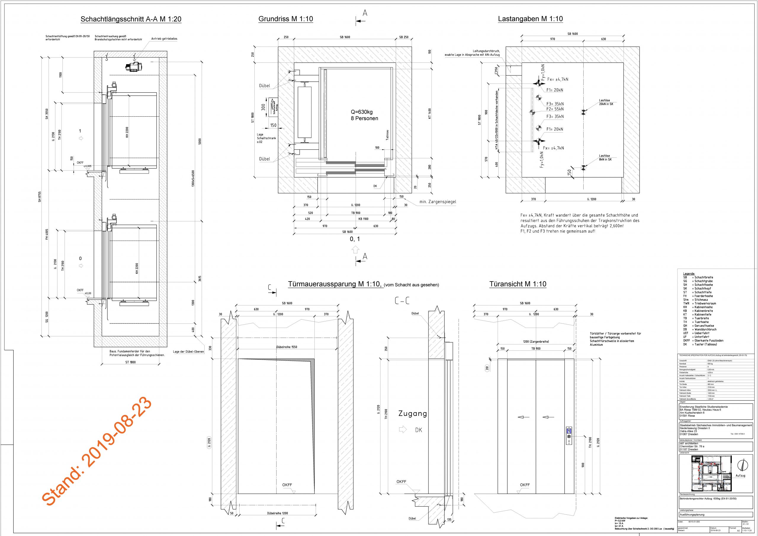
Auftraggeber: Staatsbetrieb Sächsisches Immobilien- und Baumanagement / NL Dresden II (SIB)
Auftrag: Berufsakademie Riesa Neubau Gebäude 6
- Aufzug 630kg, maschineraumlos (EN 81-20/50, seil-elektrisch)
- Auftragszeitraum: 2019-2021
Leistungsumfang:
Entwurfs- und Ausführungsplanung, Erstellung Leistungsverzeichnisse, Vorbereitung und Mitwirkung Vergabe, Bauüberwachung (LPH 2-8)
Auftraggeber: BauEntwurf Pirna GmbH
Auftrag: Stadthaus Frauenstein, Silbermannmuseum
- Aufzug 630kg, maschineraumlos (EN 81-20/50, seil-elektrisch)
- Auftragszeitraum: 2018-2021
Leistungsumfang:
Entwurfs- und Ausführungsplanung, Erstellung Leistungsverzeichnisse, Vorbereitung und Mitwirkung Vergabe, Bauüberwachung (LPH 2-8)
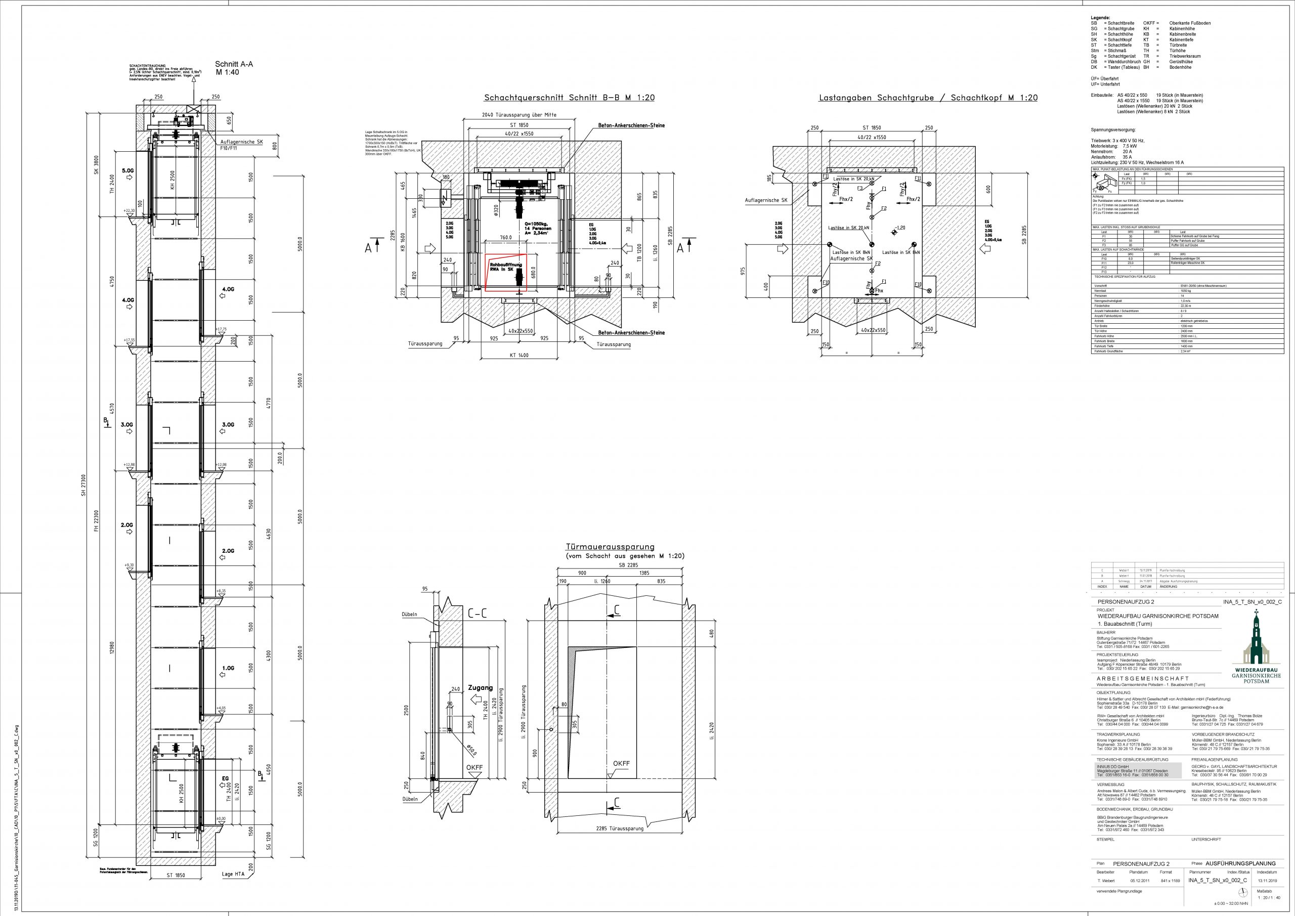
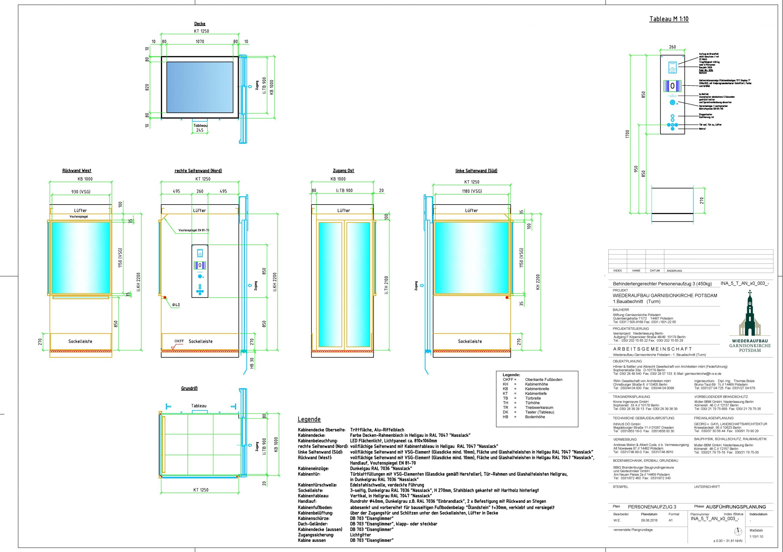
Auftraggeber: INNIUS DÖ GmbH, Dresden
Auftrag: Neubau Garnisonkirche, Potsdam
- 2 Aufzüge 1.050kg, maschineraumlos (EN 81-20/50, seil-elektrisch)
- Aufzug 450kg mit Schachtgerüst im Kuppelaufgang, maschineraumlos (EN 81-20/50, seil-elektrisch)
- Auftragszeitraum: 2012-2021
Leistungsumfang:
Entwurfs- und Ausführungsplanung, Erstellung Leistungsverzeichnisse, Vorbereitung und Mitwirkung Vergabe (LPH 3, 5-7)






























